Table of Contents
The best way to help The Langley Union grow is simple: share this newsletter. Forward it to a friend, mention it to your family, or post it on social media and encourage others to subscribe.
Good morning, Langley!
As we enjoy another pleasant September day with temperatures reaching a comfortable 20°C under partly cloudy skies, our community roundup highlights significant developments across the region.
Today's stories span from the soaring success of our inaugural Air Fair to troubling homelessness statistics, while Fraser Valley communities prepare for meaningful Truth and Reconciliation events.
We also cover major political shifts with Emily Lowan's Green Party leadership victory and concerning warnings about BC's mounting debt crisis.
Local Langley News
Langley Air Fair 2025 Takes Flight With Record-Breaking Success

The inaugural Langley Air Fair soared beyond all expectations on September 13th, transforming Langley Regional Airport into a spectacular aviation showcase.
Held under picture-perfect sunny skies, the event drew enthusiastic crowds that far exceeded organizers' projections, marking what appears to be the beginning of a new annual tradition. The fair featured aircraft displays, aerial demonstrations, and family-friendly activities that captivated aviation enthusiasts and casual visitors alike.
The overwhelming success has already sparked discussions about expanding next year's event, with organizers noting the strong community support and visitor engagement throughout the day.
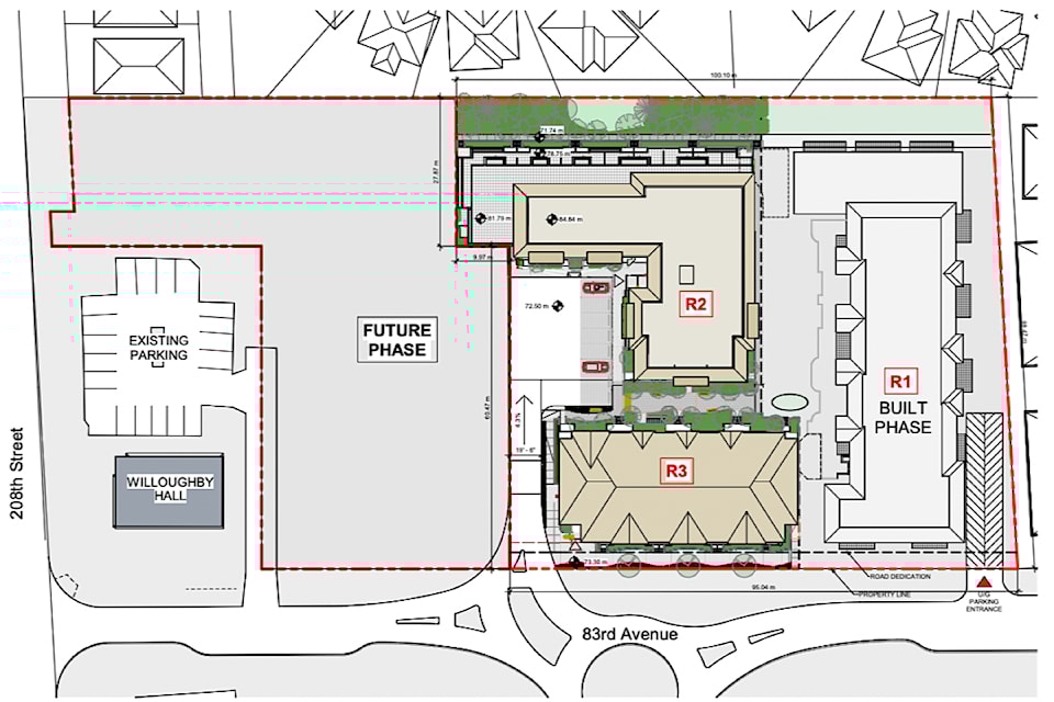
Long-Delayed Condo Project Gets Second Life Near Willoughby Hall

A residential development that has been dormant for over a decade is finally moving forward, breathing new life into a controversial site near Willoughby Hall.
The property was originally slated to become an Irish cultural centre more than ten years ago, sparking significant community debate and political maneuvering at the time. After years of legal battles and planning delays, developers have pivoted to a condominium project that better aligns with current housing needs and zoning requirements.
The project represents a significant shift from the original cultural vision, but city planners suggest the residential use may provide better long-term value for the community. Construction timelines and pricing details have yet to be announced, though preliminary approvals are already in place.
Metro Vancouver Homelessness Crisis Hits Langley Hard

The latest point-in-time homelessness count reveals alarming trends affecting Langley City and Township, with 243 people experiencing homelessness during the 2025 survey.
Of particular concern is that 138 individuals were completely unsheltered, meaning they weren't accessing temporary shelter services like the Gateway of Hope. The data shows a troubling increase in the length of time people remain homeless, with 75% now experiencing homelessness for more than a year compared to just 50% in 2020.
Indigenous people remain significantly overrepresented in the homeless population due to intergenerational trauma from residential schools and colonial practices. About two-thirds of those experiencing homelessness also face mental health and substance use challenges, highlighting the complex nature of the crisis.
The provincial government faces mounting pressure to invest in long-term mental health care combined with housing solutions, as emergency shelter services alone prove insufficient to address the growing need.
Fraser Valley Prepares for National Day for Truth and Reconciliation

Communities across the Fraser Valley are organizing meaningful events to honor the National Day for Truth and Reconciliation on September 30th.
Abbotsford will host "StetĂs Ămexstowx (Walk Beside Us)" at Thunderbird Square and Civic Plaza, featuring drumming, orange shirt art education, and a performance of Luminous Waters. The event brings together multiple civic organizations with a shared goal of creating space for learning and understanding about residential school impacts.
Chilliwack offers several events including a Truth & Reconciliation Market and Panel Event at the HUB International Theatre, while Sts'ailes First Nation will host their fourth annual Truth and Reconciliation Walk. StĂł:lĹ Nation is organizing "Bridging Hearts: A Step Towards Unity and Healing" at the Coqualeetza Grounds.
For those unable to attend in-person events, the National Centre for Truth and Reconciliation is hosting virtual lunch and learn sessions throughout the week of September 22-26.
Community Calendar: Langley Amps Up With Music and Events

Langley's fall calendar is packed with exciting events and musical performances that promise to energize the community.
Local organizations are encouraged to submit information about upcoming events, with publication at the discretion of the newspaper and the responsibility for keeping information current resting with host groups. The diverse lineup includes concerts, cultural celebrations, and family-friendly activities designed to bring residents together.
From intimate acoustic performances to large-scale festivals, the upcoming events showcase Langley's vibrant cultural scene and community spirit. Residents can look forward to a variety of entertainment options that cater to different tastes and age groups throughout the season.
Regional Vancouver / Fraser Valley News
Emily Lowan's Progressive Vision Captures BC Green Leadership

Emily Lowan, a 25-year-old climate justice advocate, has been elected as the new leader of the BC Green Party in a decisive first-ballot victory.
Her campaign energized thousands of new party members, many previously disillusioned with traditional politics, signaling a generational shift toward bold progressive climate action.
The leadership race was marked by controversy over member verification processes, highlighting tensions between grassroots organizing and institutional gatekeeping.
With no Green MLAs seeking the leadership role, Lowan faces the challenge of building the party's influence outside the legislature while championing the urgent environmental reforms working-class communities desperately need.
B.C. Finance Minister Warns of Looming Debt Crisis

British Columbia's Finance Minister delivered sobering news at the Union of B.C. Municipalities annual meeting, acknowledging the province could soon be "drowning in debt."
The stark warning came as municipal leaders from across the province gathered to discuss mounting budgetary pressures affecting communities large and small. The minister's comments reflect growing concerns about the province's fiscal trajectory amid rising costs for housing, healthcare, and infrastructure.
Local government officials are grappling with their own financial challenges, from maintaining aging infrastructure to addressing homelessness and public safety concerns. The admission from Victoria suggests that hoped-for provincial support may be limited in the coming years.
The debt crisis threatens to impact everything from social services to capital projects, potentially forcing difficult choices about priorities and service levels across British Columbia.
Speed Demon Faces Heavy Penalties in Chilliwack

A reckless driver's need for speed resulted in severe consequences after being caught travelling more than twice the legal limit on a Chilliwack road.
Chilliwack RCMP clocked the driver going 142 km/hr down Prest Road, far exceeding the posted speed limit and putting other motorists and pedestrians at serious risk. The excessive speed triggered British Columbia's most serious traffic penalties under the Motor Vehicle Act.
The driver now faces a $483 ticket and had their vehicle impounded, standard consequences for extreme speeding violations that demonstrate such blatant disregard for public safety. Police noted that the speed was more than double what's legally permitted on the roadway.
The incident serves as a stark reminder of the dangerous speeds some drivers choose despite well-publicized enforcement campaigns and the potentially deadly consequences of such reckless behavior.
Abbotsford Police Launch Specialized Extortion Task Force

Rising extortion incidents in Abbotsford have prompted police to create a dedicated task force to combat this growing criminal threat.
The Abbotsford Police Department has documented 38 extortion-related incidents over the past two years, with the majority occurring since November 2023. While only two incidents in late 2023 resulted in actual violence, the trend has law enforcement officials deeply concerned about escalation.
The specialized task force represents a significant resource commitment, allowing investigators to focus exclusively on these complex cases that often involve organized criminal networks. Extortion schemes typically target business owners and individuals with threats of violence or property damage unless payment demands are met.
Police are encouraging anyone who receives extortion demands to contact authorities immediately rather than attempting to handle the situation independently, as professional intervention is crucial for both safety and successful prosecution.
National Canadian News
Young Cree Leader Champions Indigenous Youth Empowerment

The newly elected youth grand chief for the Cree Nation of Eeyou Istchee in Quebec is bringing fresh energy and perspective to Indigenous leadership.
Jade Mukash's election represents a significant moment for the Cree Nation, which has a notably young population requiring leaders who understand contemporary challenges while respecting traditional values.
The position carries considerable responsibility for representing youth interests in governance decisions affecting the community's future.
Mukash's platform focuses on giving Cree youth the resources, opportunities, and voice they need to thrive in both traditional and modern contexts. This includes addressing education gaps, mental health support, cultural preservation, and economic development initiatives.
The appointment signals a broader trend toward younger Indigenous leadership that combines traditional knowledge with contemporary advocacy skills, potentially reshaping how Indigenous nations approach self-governance and community development.
Mining Boom or Bust? Timmins Weighs Critical Mineral Future

The northern Ontario city of Timmins faces a pivotal decision about embracing a massive new nickel mining project that could reshape its economic future.
With federal and provincial governments aggressively promoting critical mineral projects as essential for Canada's green energy transition, Timmins appears poised for another resource boom. The city's long mining history provides both expertise and cautionary tales about the boom-bust cycle that has defined northern communities for generations.
Local residents and officials are eager for economic revitalization, but questions remain about who will protect the community from potential financial and environmental consequences if the project fails to deliver promised benefits. The proposed mine would extract nickel crucial for electric vehicle batteries and renewable energy storage systems.
The situation reflects broader tensions across Canada as communities balance immediate economic needs against long-term sustainability concerns, particularly in the context of climate change and the global shift toward clean energy technologies.
Sports News
đ CFL Rule Changes Draw Fierce Criticism From Players and Fans

The Canadian Football League is facing a major backlash over controversial rule changes that critics are calling "garbage" modifications to the traditional game.
BC Lions quarterback Nathan Rourke is leading the charge against the league's decision to move goalposts and shrink field dimensions, changes that purists argue fundamentally alter the character of Canadian football. The modifications have sparked intense debate about whether the CFL is abandoning its unique identity in pursuit of broader appeal.
Players, coaches, and longtime fans are expressing frustration that the league made these sweeping changes without adequate consultation with stakeholders who understand the game's nuances. The alterations affect everything from kicking strategies to defensive alignments, potentially making obsolete decades of tactical knowledge.
The controversy highlights deeper tensions within the CFL about how to balance tradition with innovation while competing for audiences in an increasingly crowded sports entertainment market.
đ Vancouver Canucks Begin Training Camp in Penticton

The Vancouver Canucks have opened their annual training camp at the South Okanagan Events Centre in Penticton under new leadership and fresh expectations.
Head coach Adam Foote is taking the reins as the team's new bench boss, bringing his championship experience and defensive expertise to a squad looking to build on recent improvements. The Penticton camp provides an intimate setting away from Vancouver's media scrutiny, allowing players to focus on conditioning and system implementation.
Training camp serves as the crucial first step in preparing for the upcoming NHL season, with roster battles, line combinations, and tactical adjustments all taking shape over the intensive multi-day session. Veterans and prospects alike are competing for roster spots and roles in Foote's system.
The Canucks organization is hoping the new coaching staff can unlock additional potential from a talented core group while integrating younger players into key roles for the franchise's continued development.
đ B.C.'s Alex de Goede Nominated for World Rugby Player of the Year

British Columbia rugby star Alex de Goede has received international recognition with a nomination for World Rugby Player of the Year.
The 26-year-old has been instrumental in powering Canada's women's rugby team to the World Cup final against England, showcasing the skill and determination that has made her one of the sport's brightest stars. Her nomination reflects not only individual excellence but also Canada's emergence as a major force in international women's rugby.
De Goede's journey to rugby's biggest stage demonstrates the strength of Canadian rugby development programs and the increasing competitiveness of the women's game globally. Her dynamic play and leadership have been crucial factors in Canada's historic World Cup run.
The World Rugby Player of the Year award represents the pinnacle of individual recognition in international rugby, with de Goede's nomination highlighting her exceptional contributions to Canada's success on the world stage.
Events Happening Today
Artists in the Library (Drop-in)

- Time: 10:00am to 2:00pm
- Location: Muriel Arnason Library
- Description: Meet local artist Glenda Penner. Our guest looks forward to sharing their work and chatting with you while they're at the library.
Sit ân Stitch (Drop-in)

- Time: 12:30 to 2:30pm
- Location: Fort Langley Library
- Description: The library invites you to bring your knitting, crochet, or any other lap-sized craft and spend some time creating with us. Drop in to share ideas, swap tips, and enjoy a friendly chat with fellow makers â all ages and skill levels welcome.
Literally Amazing Book Club

- Time: 1:00 to 2:00pm
- Location: Muriel Arnason Library
- Description: This book club is lit-erally amazing! Each month we read a book and meet to engage in lively discussions.
New members are welcome! Initial registration is required and books are available at the front desk of Muriel Arnason Library approximately one month before the meeting.
In September, we will be discussing Deep Cuts by Holly Brickley.
Scrabble Club (Drop-in)

- Time: 1:30 to 3:30pm
- Location: City of Langley Library
- Description: Come join us for a rousing game of Scrabble in the library. Friendly environment that welcomes new players.
Board Game Night (Drop-in)

- Time: 5:30 to 7:30pm
- Location: City of Langley Library
- Description: Calling all tabletop gamers! Join us at the library on the last Wednesday of the month to play boardgames and card games! We will have games like Chess, UNO, Catan, Sequence, Sorry, Trouble, and many more!
This event is suitable for most ages â with games designed for age six to adult. Light refreshments and snacks will be provided.
Children under 10 must be accompanied.
All Ages Drop-In Chess

- Time: 6:00 to 7:30pm
- Location: Aldergrove Library
- Description: Calling chess players of all agesâthose who want to learn, improve, meet other chess players, or just have fun!
Coaching on basic rules provided.
Pyjama Storytime: Culture Days (Drop-in)

- Time: 6:00 to 6:30pm
- Location: Muriel Arnason Library
- Description: Tuck into a story, and celebrate Culture Days with us! Children and caregivers will be entertained with stories, songs, and rhymes all about dance and movement. Kids are encouraged to wear their pyjamas and bring their favourite stuffie. Storytime prepares children to learn to read.
Please consider supporting the journalists risking their lives to document genocide by donating to the Gaza Journalist Fund. Every dollar helps cover evacuation costs, shelter, and basic survival needs for those bearing witness to history.
When we fund their survival, we preserve the truth and ensure these critical voices aren't silenced by displacement and deprivation.
What did you think of this story?
Take our quick 2-minute survey to let us know how we're doing and what topics you'd like to see The Langley Union cover next.
